GO! Campus Athena

Education

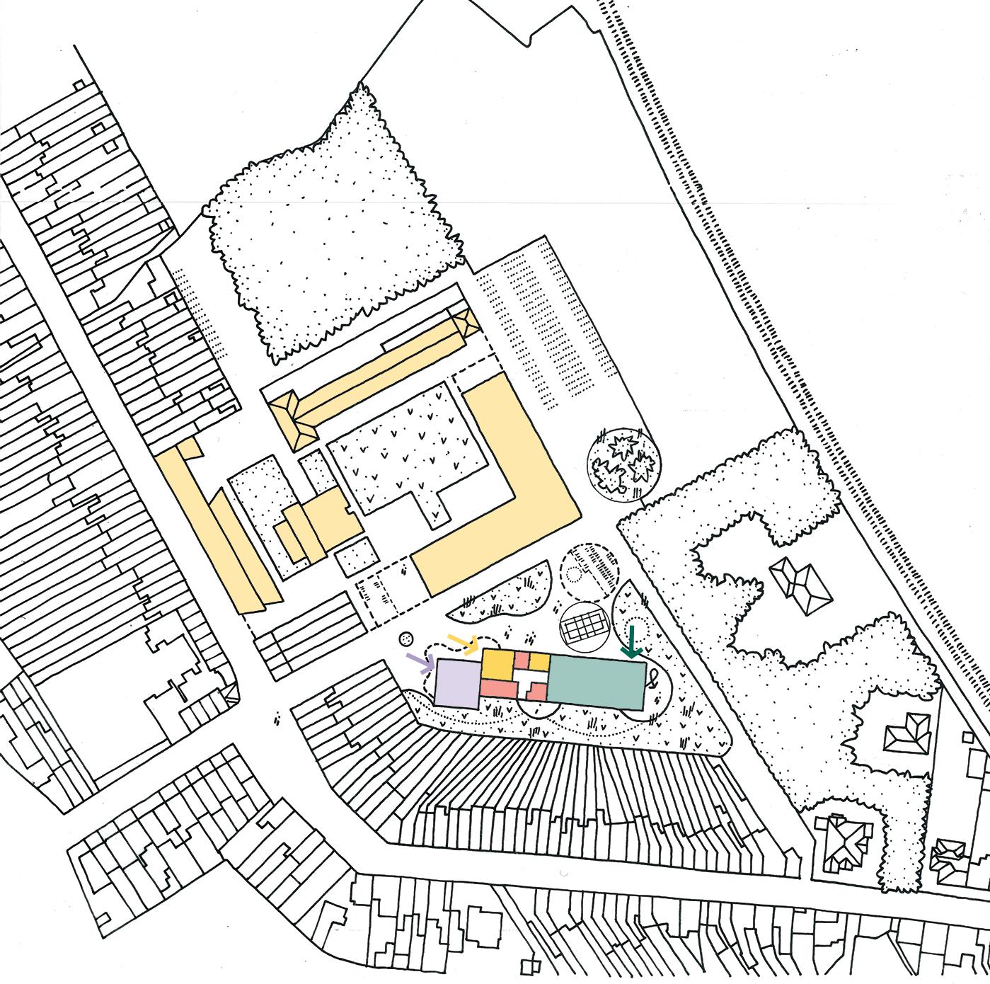
Design & Build proposal for an open, shared secondary school as the clear and future-focused heart of the wider GO! school campus in Heule.

Competition

2nd prize

Year

2025

Location

Heule

Surface

3,533 m²

Client

Go! Onderwijs van de Vlaamse Gemeenschap

Team

Evert Crols, Maxime Elst, Dirk Engelen, Sven Grooten, Dion Lobregt, An-Sofie Michielsen

In collaboration with

Bouwbedrijf Furnibo, Sweco, Dexco

Press

Our design proposal for the new GO! Campus Athena is rooted in the concept of the broad, open school: a learning environment that is meaningful both during and beyond school hours. The new secondary school is conceived as an integral part of the campus, bringing together the teen education programme and OV4 within one clear, inclusive and flexible building.

The atrium forms the spatial and social heart of the building and the campus. On the ground floor, it acts as a lively meeting space, directly connected to the tiered stair and public programmes. On the upper level, the atrium becomes more subdued, incorporating a reading and study area where calm and focus prevail. This balance between activity and tranquillity supports different rhythms of use and enhances the building’s legibility.

The public ground floor is organised around the atrium. The multipurpose hall is highly flexible and can easily be linked to the atrium for larger events. The STEM department is prominently positioned as an open hub for experimentation and creativity. A central flex zone connects the STEM classrooms and culminates in the distinctive STEM cube, while instruction rooms face the playground and the science classroom borders the calm of the ‘secret garden’. Separate entrances allow these functions to operate independently outside school hours.

The upper floors are more intimate in character. The teen school occupies the first floor and is organised around a central flex space with views towards both the playground and the inner garden. The subdivision into two learning pathways supports differentiated learning within a clear overall structure. The OV4 department on the second floor is conceived as a calm, low-stimulus learning environment, with paired classrooms and focus rooms and centrally embedded pupil guidance.

Administrative and support functions are centrally positioned along the atrium, forming a visible and accessible point of contact. The teachers’ room is quietly oriented towards the ‘secret garden’, offering a pleasant working environment with ample daylight and greenery.

The building is based on a rational and flexible structural grid that allows for future adaptation and expansion. Compactness, clear zoning and robust, low-maintenance materials contribute to a sustainable and durable design. The yellow-beige brick façade relates to the existing campus and is refined through a concrete plinth and green accents.

Through this design proposal, GO! Campus Athena is conceived as more than a school building: a clearly organised and future-proof learning environment that remains active throughout the day and beyond.

Similar projects